
2
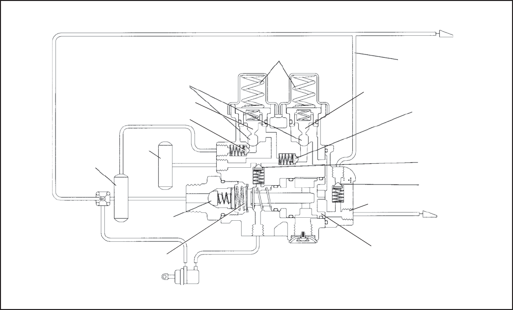
FIGURA 2 - DIBUJO TRANSVERSAL DE LA VÁLVULA SR-4
™
DE BENDIX
®
FRENO POR RESORTE
VÁLVULA DE
RETENCIÓN “C”
LÍNEA DE SUMINISTRO DEL
REMOLQUE
LÍNEA DE ANTIMEZCLA
DE FUERZAS
DEPÓSITO
N.º 2
RESORTES DE PISTÓN DE
PROTECCIÓN DE PRESIÓN
LÍNEA DE SERVICIO
VÁLVULA DE
RETENCIÓN “A”
VÁLVULA DE
RETENCIÓN “B”
VÁLVULA DE RETENCIÓN
DE ANTIMEZCLA DE
FUERZAS
VÁLVULA DE RELÉ
VÁLVULAS DE
ENTRADA DE
PROTECCIÓN DE
PRESIÓN
aire fl uye más allá de la válvula de retención “A” al depósito N.º
2 y más allá de la válvula de retención “B” a través de la válvula
de entrada del freno por resorte abierta y hacia las unidades de
freno por resorte. El aire no puede fl uir de la válvula SR-4
™
de
Bendix
®
hacia el depósito N.º 1 por la válvula de retención “C”.
El aire fl uye de manera simultánea en la válvula de protección
de presión PR-3
™
, (válvula SR-4
™
tipo 1) o el segundo pistón de
protección de presión (válvula SR-4
™
tipo 2). A aproximadamente
70 psi, el pistón “F” se desplaza contra la resistencia del resorte
y permite que el aire fl uya a través de la válvula de retención “G”
y hacia el depósito N.º 1.
APLICACIÓN DE FRENO DE
ESTACIONAMIENTO
Para aplicar los frenos por resorte del remolque, la línea de
suministro del remolque se ventila por medio de uno de los
controles en la cabina. La presión se elimina del pistón de
control y del pistón de protección de presión interna, cerrando
la válvula de protección de presión y la válvula de entrada del
freno por resorte.
FALLA DEL SISTEMA DE SERVICIO
Si la presión de aire se reduce en el sistema de servicio, la presión
en la línea de suministro del remolque (y en el tractor) será
reducida hasta que se cierre la válvula de protección de presión
interna, manteniendo 344,7 a 413,7 kPa (50 a 60 psi) en la línea
de suministro del remolque y el depósito de servicio del tractor.
Permanecerá en 344,7 a 413,7 kPa (50 a 60 psi) en el pistón
de control, lo que mantendrá liberados los frenos por resorte.
Al mismo tiempo, la reducción de la presión en el sistema del
tractor activará la señal sonora de presión baja, alertando así al
conductor. Si la falla de servicio se produce en el depósito N.º 2, el
aire que pasa por la válvula de protección de presión se escapará
por el depósito N.º 2 y no podrá volver a suministrar el depósito
N.º 1. El depósito N.º 1 permanecerá lleno de presión debido a
la válvula de retención de protección de presión y la válvula de
retención "B". El suministro de reserva de aire proporcionará
por lo menos una liberación del freno por resorte después de la
aplicación manual. Las aplicaciones de servicio aún se pueden
hacer hasta que escape el aire del depósito N.º 1.
Si la falla del servicio está en el depósito N.º 1, la válvula de
protección de presión se cerrará y permitirá que el aire se
suministre al depósito N.º 2. Este aire estará disponible para
liberar el freno por resorte a través de la válvula de retención
"B", aunque es posible que no se puedan llevar a cabo las
aplicaciones de servicio.
APLICACIÓN DE EMERGENCIA CON FALLA
DEL SISTEMA DE SERVICIO
Para frenar el remolque después de una falla del sistema de
servicio, la presión restante de 379,2 kPa (55 psi) en la línea de
suministro del remolque se ventilará manual o automáticamente
por la válvula de suministro del remolque o la válvula de control
de estacionamiento. Los frenos por resorte se pueden ventilar
a través del pistón de control y de esta manera se aplicará. Se
mantendrá sufi ciente presión en el sistema del remolque para
liberar los frenos por resorte por lo menos una vez.
DEPÓSITO
N.º 1
PISTÓN DE CONTROL “D”
PISTÓN DE PROTECCIÓN
DE PRESIÓN “F”
VÁLVULA DE ENTRADA DE
FRENO POR RESORTE “E”
VÁLVULA DE RETENCIÓN “G”
PUERTO DE SUMINISTRO
PISTÓN DE PROTECCIÓN
DE PRESIÓN “F”
Comentários a estes Manuais